0974.502080
File revit nhà phố 3 tầng 4x18m miễn phí

Ảnh demo (7)

[Mã bản vẽ 72] File revit nhà phố 3 tầng 4x18m miễn phí

(1 Đánh giá)
👁 215

Chia sẻ miễn phí File revit nhà phố 3 tầng hạng mục bố trí công năng và kiến trúc

Ngày đăng: 07-02-2026
Loại file: Revit
Lượt xem: 215
Lượt tải: 21

Mô tả sản phẩm

Chia sẻ miễn phí File revit nhà phố 3 tầng hạng mục bố trí công năng và kiến trúc

A

Admin User

(3.9/5)
👁 Xem trang

Bản vẽ

199

Đánh giá (1105)

⭐ 3.9/5

Ngày tham gia

17/01/2026

MÔ TẢ CHI TIẾT

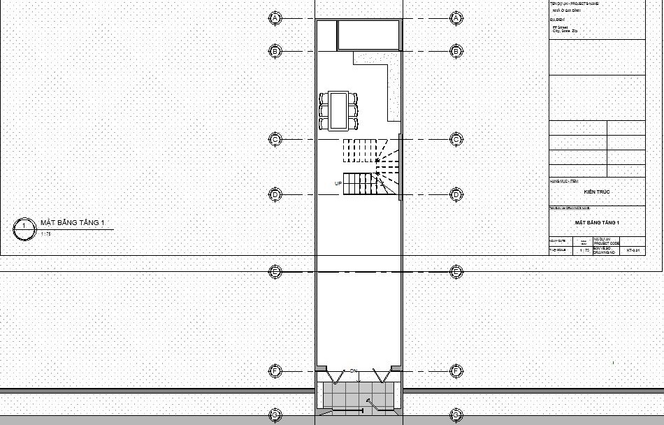
Bản vẽ revit nhà phố 3 tầng 4x18m

Công năng:

- Tầng 1: Kinh doanh, bếp + ăn

- Tầng 2: 3 Phòng ngủ, 2 wc

- Tầng 3: Phòng thờ.

 

HÌNH ẢNH DEMO

Bản vẽ revit nhà phố 3 tầng,File revit nhà phố 3 tầng,revit nhà phố 3 tầng,bản vẽ nhà phố 3 tầng,revit nhà phố 3 tầng 4x18m

Bản vẽ revit nhà phố 3 tầng,File revit nhà phố 3 tầng,revit nhà phố 3 tầng,bản vẽ nhà phố 3 tầng,revit nhà phố 3 tầng 4x18m

Bản vẽ revit nhà phố 3 tầng,File revit nhà phố 3 tầng,revit nhà phố 3 tầng,bản vẽ nhà phố 3 tầng,revit nhà phố 3 tầng 4x18m

Bản vẽ revit nhà phố 3 tầng,File revit nhà phố 3 tầng,revit nhà phố 3 tầng,bản vẽ nhà phố 3 tầng,revit nhà phố 3 tầng 4x18m

Bản vẽ revit nhà phố 3 tầng,File revit nhà phố 3 tầng,revit nhà phố 3 tầng,bản vẽ nhà phố 3 tầng,revit nhà phố 3 tầng 4x18m

Bản vẽ revit nhà phố 3 tầng,File revit nhà phố 3 tầng,revit nhà phố 3 tầng,bản vẽ nhà phố 3 tầng,revit nhà phố 3 tầng 4x18m

Bản vẽ revit nhà phố 3 tầng,File revit nhà phố 3 tầng,revit nhà phố 3 tầng,bản vẽ nhà phố 3 tầng,revit nhà phố 3 tầng 4x18m

File revit nhà phố 3 tầng 4x18m miễn phí - Hình 1 File revit nhà phố 3 tầng 4x18m miễn phí - Hình 2 File revit nhà phố 3 tầng 4x18m miễn phí - Hình 3 File revit nhà phố 3 tầng 4x18m miễn phí - Hình 4 File revit nhà phố 3 tầng 4x18m miễn phí - Hình 5 File revit nhà phố 3 tầng 4x18m miễn phí - Hình 6 File revit nhà phố 3 tầng 4x18m miễn phí - Hình 7

HÌNH ẢNH ĐÍNH KÈM

— Quảng cáo —

alo 12345

Copyright © 2026 Shopthietke.Vn. All rights reserved.

107,000 đ

Thanh toán bằng đ trong tài khoản

ĐÁNH GIÁ 1

3.0
1 đánh giá
Đăng nhập để đánh giá sản phẩm
K
Kiến Trúc Sư Trẻ
5 months ago

File "File revit nhà phố 3 tầng 4x18m miễn phí" phần mặt cắt và chi tiết cầu thang rất đẹp.

BÌNH LUẬN 0

Đăng nhập để bình luận

Chưa có bình luận nào. Hãy là người đầu tiên!