0974.502080
Bản vẽ container đầy đủ chi tiết

Ảnh demo (2)

[Mã bản vẽ 30] Bản vẽ container đầy đủ chi tiết

(1 Đánh giá)
👁 855

Chia sẻ tới các bạn bộ bản vẽ thiết kế mẫu container được thiết kế chi tiết để các bạn cùng tham khảo

Thể loại: TỔNG HỢP
Ngày đăng: 07-02-2026
Loại file: Autocad
Lượt xem: 855
Lượt tải: 153

Mô tả sản phẩm

Chia sẻ tới các bạn bộ bản vẽ thiết kế mẫu container được thiết kế chi tiết để các bạn cùng tham khảo

A

Admin User

(3.9/5)
👁 Xem trang

Bản vẽ

199

Đánh giá (1105)

⭐ 3.9/5

Ngày tham gia

17/01/2026

MÔ TẢ CHI TIẾT

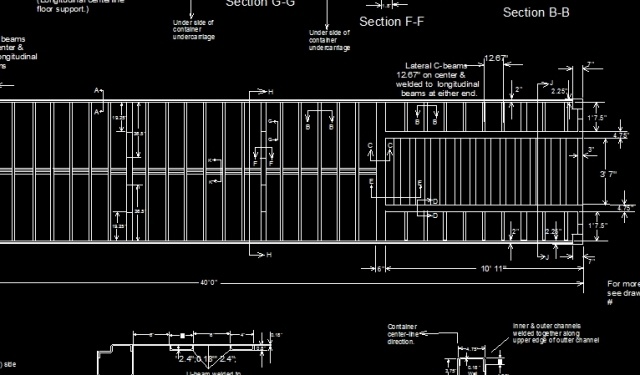
Bản vẽ được thiết kế rất chi tiết với đủ mọi hình chiếu, sẽ thuận tiện cho các bạn khi làm bài tập.

 

HÌNH ẢNH DEMO

Bản vẽ container,mẫu container,thiết kế container

Bản vẽ container,mẫu container,thiết kế container

Bản vẽ container đầy đủ chi tiết - Hình 1 Bản vẽ container đầy đủ chi tiết - Hình 2

HÌNH ẢNH ĐÍNH KÈM

— Quảng cáo —

alo 12345

Copyright © 2026 Shopthietke.Vn. All rights reserved.

75,000 đ

Thanh toán bằng đ trong tài khoản

ĐÁNH GIÁ 1

5.0
1 đánh giá
Đăng nhập để đánh giá sản phẩm
S
Seller User
1 month ago

Tổng hợp những file hay nhất, xứng đáng mua.

BÌNH LUẬN 0

Đăng nhập để bình luận

Chưa có bình luận nào. Hãy là người đầu tiên!